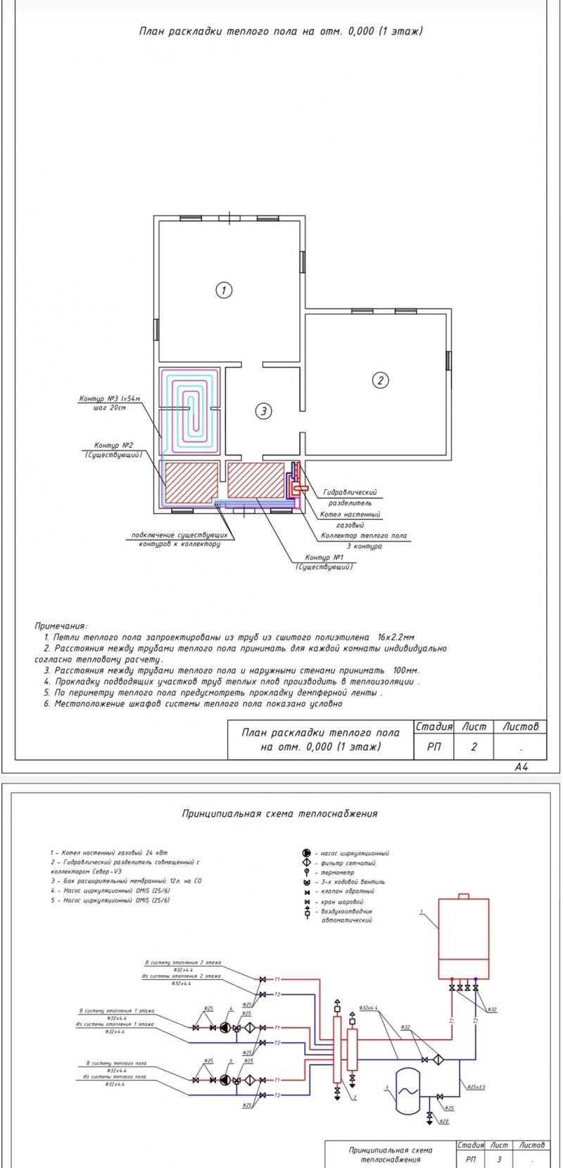
Проектирование системы отопления

![]() |
Анатолий |
![]() |
9042690758 Отправить письмо |
![]() |
Минская 16а |
Проектирование систем и подбор оборудования необходимого для монтажа.
2025-03-07
![]() |
Анатолий |
![]() |
9042690758 Отправить письмо |
![]() |
Минская 16а |
Проектирование систем и подбор оборудования необходимого для монтажа.
2025-03-07